Toto je starší verze dokumentu!
Obsah
Typologie bezbariérových prostor
Typologie a užívání staveb osobami se sníženou schopností pohybu a orientace
Užívané piktogramy a typy omezení
Předpokladem snadného pohybu a orientace je správné zhodnocení omezujících faktorů užívání stavby pro jednotlivé skupiny osob se zdravotním omezením. Jde zejména o tři základní omezení:
- omezení pohybové,
- omezení smyslového vnímání vizuálního,
- omezení smyslového vnímání sluchového.
Omezení pohybové
Pro pohybové omezení jsou základním problémem především fyzické překážky. Překonání jakéhokoli výškového stupně i minimálního sklonu pochozí plochy vyžaduje pro osobu s omezenou schopností pohybu značnou tělesnou námahu či nepřekonatelnou překážku. Úpravy musí být zaměřeny na:
- eliminace výškových rozdílů,
- dodržení maximálních podélných a příčných sklonů pochozích ploch,
- zajištění dostatečných průjezdů a manipulačních prostor,
- umístění ovládacích prvků v dosahové vzdálenosti osoby na vozíku.
Omezení smyslového vnímání vizuálního
U omezení smyslového vnímání vizuálního je problémem zejména nedostatek a nejednoznačnost informací o stavbě a jejím okolí získávaných nevizuálně – hmatně (především technikou dlouhé bílé hole) a akusticky (u proměnných situací).
Úpravy pro osoby s úplnou ztrátou zraku jsou zejména zaměřeny na:
- zajištění vodicích linií, tvořených především prvky vystupujícími nad pochozí rovinu, v odůvodněných případech (nástupiště, plochy zastávek, přechody na pozemních komunikacích apod.) prvky vnímatelnými holí a nášlapem umístěnými v pochozí rovině (speciální dlažby z povrchu hmatově charakteristicky odlišného od okolí),
- identifikaci bezprostředního okolí (např. přítomnost prostorových schodišť, lávek, konců nástupišť, čekáren apod.),
- předávání informací o okolí a službách (především akustickým způsobem).
Úpravy pro osoby s částečnou ztrátou zraku pomáhají opatření:
- užití nereflexních značek se silným barevným kontrastem,
- krátké a lehko srozumitelné nápisy psané velkými písmeny,
- plány umístění, pokyny pro nákup jízdenek apod. by měly být čitelné z velmi malé vzdálenosti a provedeny jednoduchým a srozumitelným způsobem.
Omezení smyslového vnímání sluchového
Potřeby a požadavky pro omezení smyslového vnímání sluchového se vzhledem k vizuální orientaci civilizace týkají především provozních informací a komunikačních problémů při využívání staveb, a to zejména dopravních. Jejich orientaci zkvalitní navržená opatření:
- zavedení vizuálních informačních a orientačních systémů ve vstupních halách, odbavovacích halách dopravního systému, na zastávkách, nástupištích apod.,
- zavedení vizuálního systému varovných signálů – světelná signalizace,
- vybavení přepážek informací apod. hovorovým systémem pro nedoslýchavé – indukční smyčky pro přepážky.
Základní ustanovení vyhlášky č. 398/2009 Sb.
Vyhláška č. 398/2009 Sb.1) nahradila 5. listopadu 2009 vyhlášku č. 369/2001 Sb.2) Tato vyhláška stanoví obecné technické požadavky na stavby a jejich části tak, aby bylo zabezpečeno jejich užívání osobami s pohybovým, zrakovým, sluchovým a mentálním postižením, osobami pokročilého věku, těhotnými ženami, osobami doprovázejícími dítě v kočárku nebo dítě do tří let (dále jen „osoby s omezenou schopností pohybu nebo orientace“).
Projektování bezbariérových provozů pro osoby s omezenou schopností pohybu vychází z dispozic, možností a potřeb osob na vozíku.
Minimální manipulační prostor
Minimální manipulační prostor pro otáčení vozíku do různých směrů v rámci úhlu, který je větší než 180o, je kruh o průměru 1500 mm a nejmenší prostor pro otáčení vozíku o 90o až 180o je obdélník o rozměrech 1200 mm x 1500 mm. Výškové rozdíly pochozích ploch nesmí být vyšší než 20 mm. Povrch pochozích ploch musí být rovný, pevný a upravený proti skluzu. Nášlapná vrstva musí mít: a) součinitel smykového tření nejméně 0,5 nebo b) hodnotu výkyvu kyvadla nejméně 40, nebo c) úhel kluzu nejméně 10o.
Schodiště a vyrovnávací stupně
Ve všech ramenech téhož schodiště musí být stejný počet stupňů. Počet stupňů za sebou může být nejméně 3 a nejvíce 16. Sklon schodišťového ramene nesmí být vetší než 28o a výška schodišťového vyrovnávacího stupně větší než 160 mm, to neplatí pro stavby bytových domů s výtahem. Schodišťová ramena a vyrovnávací stupně musí být po obou stranách opatřeny madly ve výši 900 mm, která musí přesahovat nejméně o 150 mm první a poslední stupeň s vyznačením v jejich půdorysném průmětu. Madlo musí být odsazeno od svislé konstrukce ve vzdálenosti nejméně 60 mm.
Komunikace pro chodce
Musí mít celkovou šířku nejméně 1500 mm, včetně bezpečnostních odstupů. Výškové rozdíly ne komunikacích pro chodce nesmí být vyšší než 20 mm. Komunikace pro chodce smí mít podélný sklon nejvýše v poměru 1:12 (8,33%) a příčný sklon nejvýše v poměru 1:50 (2%). Na úsecích s podélným sklonem větším než 1:20 (5%) a delších než 200 m musí být zřízena odpočívadla o délce nejméně 1500 mm. Sklon v jednom směru nejvýše v poměru 1:50 (2%).
Bezbariérové rampy a vstupy do objektů
Bezbariérové rampy musí mít po obou stranách opatření proti sjetí vozíku, respektive vodící prvek pro bílou hůl jako je spodní tyč zábradlí ve výšce 100 až 250 mm nebo sokl s výškou nejméně 100 mm. Bezbariérové rampy musí být široké nejméně 1500 mm a jejich podélný sklon smí být nejvýše v poměru 1:16 (6,25) a příčný sklon nejvýše v poměru 1:100 (1%). Bezbariérová rampa delší než 9000 mm musí být přerušena podestou v délce nejméně 1500 mm. Není-li bezbariérová rampa u z měn dokončených staveb delší než 3000 mm, smí mít podélný sklon nejvýše v poměru 1:8 (12,5%). Tyto rampy musí být po obou stranách opatřeny madly ve výši 900 mm, doporučuje se druhé madlo ve výši 750 mm, která musí přesahovat nejméně o 150 mm začátek a konec šikmé rampy.
Před vstupem do objektu by měla být vodorovná manipulační plocha. Velikost a uspořádání vyplývá ze směru otevírání dveřního křídla. Jestliže se otevírá směrem do objektu postačí plocha o velikosti 1500 x 1500 mm. Při otevírání dveří ven musí být šířka nejméně 1500 mm a délka ve směru přístupu nejméně 2000 mm. Sklon plochy před vstupem do budovy smí být pouze v jednom směru a nejvýše v poměru 1:50 (2,0%). Vstup do objektu musí mít šířku nejméně 1250 mm. Hlavní křídlo dvoukřídlých dveří musí umožňovat otevření nejméně 900 mm.
Dveře
Otevíraná dveřní křídla musí být ve výši 800 až 900 mm opatřena vodorovnými madly přes celou jejich šířku, umístěnými na straně opačné než jsou závěsy, s výjimkou dveří automaticky ovládaných. Dveře smí být zaskleny od výšky 400 mm, nebo musí být chráněny proti mechanickému poškození vozíkem. Zámek dveří musí být umístěn nejvýše 1000 mm od podlahy, klika nejvýše 1100 mm. Dveře smí být zaskleny od výšky 400 mm nebo musí být chráněny proti mechanickému poškození vozíkem. Prosklené dveře, jejichž prosklení zasahuje níže než 8000 mm nad podlahou, musí být ve výšce 800 až 1000 mm a zároveň ve výšce 1400 až 1600 mm kontrastně označeny oproti pozadí, zejména musí mít výrazný pruh šířky nejméně 50 mm nebo pruh značek o průměru 50 mm vzdálených od sebe nejvíce 150 mm, jasně viditelných oproti pozadí.
Okna
Okna s parapetem nižším než 500 mm a prosklené stěny musí mít spodní část do výšky 400 mm nad podlahou opatřeny proti mechanickému poškození. V každé obytné místnosti musí mít nejméně jedno okno pákové ovládání nejvýše 1100 mm nad podlahou.
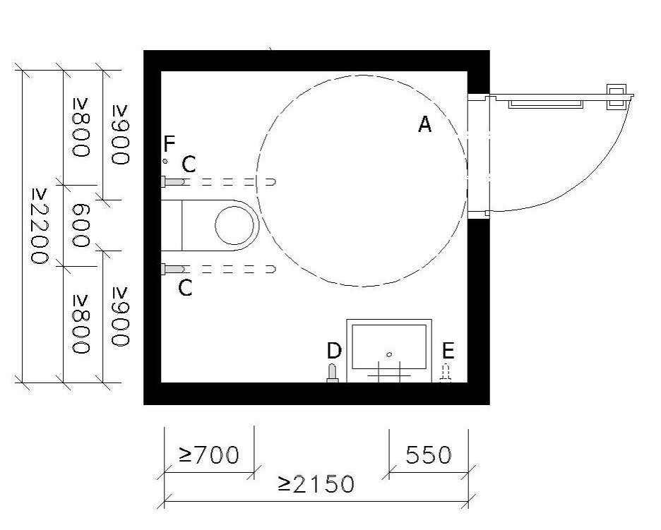
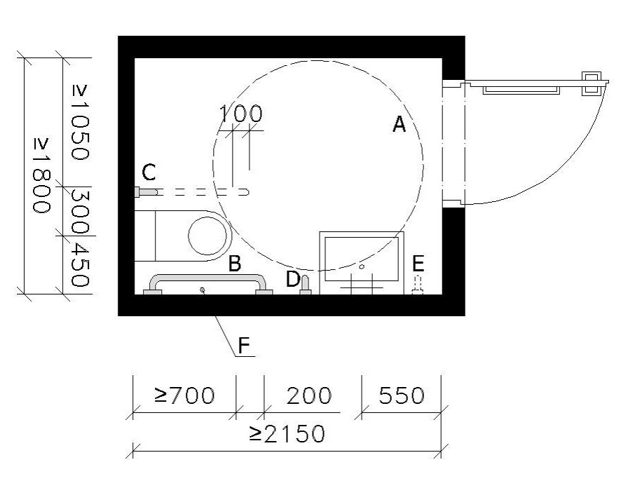
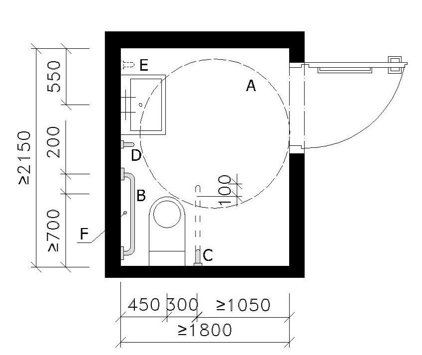
Hygienická zařízení
Záchodová kabina musí mít šířku nejméně 1800 mm a hloubku nejméně 2150 mm. U změn dokončených staveb lze rozměry této kabiny snížit až na 1600 x 1600 mm. Záchodová kabina s využitím asistence musí mít šířku nejméně 2200 mm a hloubku nejméně 2150 mm. Dveře u bytů a obytných částí musí mít šířku nejméně 900 mm, musí se otevírat směrem ven a musí být z vnitřní strany opatřeny vodorovným madlem ve výšce 800 až 900 mm. Zámek musí být zjistitelný zvenku.
Bezbariérová kabina – vstup na kratší straně
Bezbariérová kabina - vstup na delší straně
Bezbariérová kabina s využitím asistence
Legenda A – manipulační plocha - d=1500 mm B – nástěnné vodorovné madlo C – sklopné madlo D – nástěnné svislé madlo E – doporučené druhé nástěnné svislé madlo u umyvadla F – ovladač signalizačního systému nouzového volání
Zařizovací předměty bezbariérové koupelny:
- záchodová mísa – osově 450 mm od boční stěny, horní hrana sedátka mísy 460 mm nad podlahou, ovládání splachování ve výši max. 1200 mm nad podlahou, madla po obou stranách mísy - vzdálenost 600 mm, výška 800 mm, pevné madlo o 100 mm delší než mísa, sklopné o 200 mm - umyvadlo – opatřeno stojánkovou výtokovou baterií s pákovým ovládáním, horní hrana ve výšce 800 mm, umožnit podjezd, zrcadlo ve výši max. 900 mm, horní hrana ve výši min. 1800 mm nad podlahou, svislé madlo vedle umyvadla délky min. 500 mm - vana – horní hrana ve výši max. 500 mm, odsazena od stěny 100 mm, v záhlaví vana přizděna min. o 400 mm, madlo vodorovné délky 1200 mm 100 mm nad vanou a madlo svislé délky 500 mm max. 200 mm od vanové baterie - sprchový kout – rozměr min. 900/900 mm, sklopné sedátko min. 450 x 450 mm ve výši 460 mm nad podlahou, svislé madlo délky 500 mm, umístěné 900 mm od rohu sprchy a vodorovné madlo délky 600 mm, 800 mm nad podlahou - háček na oděvy - prostor pro odpadkový koš
Bezbariérová sprcha
Legenda A – manipulační plocha pro přesun z vozíku B – sprchové sedátko C – vodorovné madlo D – svislé madlo E – sklopné madlo F – ovladač signalizačního systému nouzového volání G – závěs/zástěna
Bezbariérová vana
Legenda A – manipulační plocha – d=1500 mm B – místo pro přesedání C – vodorovné madlo D – svislé madlo E – svislé madlo (doporučeno pro chodícího uživatele) F – ovladač signalizačního systému nouzového volání
Kuchyně bezbariérového bytu
Patří mezi prostory, u kterých je třeba postupovat při navrhování a vybavování pečlivě. Na správném uspořádání kuchyně závisí míra soběstačnosti handicapovaného.
Zdroje: ZDRAŽILOVÁ, R. Odstraňování bariér v městském inženýrství. Praha: Informační centrum ČKAIT, 2006. ISBN 80-87093-12-7. ZDRAŽILOVÁ, R. Bezbariérové užívání staveb: Základní principy přístupnosti. Praha: Informační centrum ČKAIT, 2007. 10 s. ISBN 978-80-87093-56-6. FILIPIOVÁ, D. Projektujeme bez bariér. Praha: Ministerstvo práce a sociálních věcí, 2002. 104 s. NEUFERT, Ernst. Navrhování staveb: 33. nově přepracované vydání. Praha : Consult invest, 1995. 588 s. Vyhláška č. 398/2009 Sb. Stavební zákon č. 183/2006 Sb. Stavební zákon č. 183/2006 Sb. ČSN 73 4108 Hygienická zařízení a šatny, 02/2013 Vzdělávací modul Bezbariérové užívání staveb (http://fast10.vsb.cz/vzdelavaci-modul-bezbarieroveho-uzivani-staveb/)






