stav:hydrofyzikalni_namahani
Toto je starší verze dokumentu!
Obsah
Hydrofyzikálního namáhání podzemní části budovy
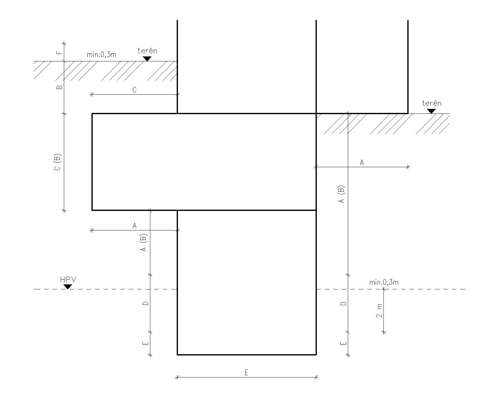
Schéma rozdělení namáhání podzemní části budovy
Hydrofyzikální namáhání ve výkopu s drenáží a bez drenáže
| Označení | Popis | Vytažení hydroizolace | Poznámky | Zdroj |
|---|---|---|---|---|
| A | Zemní vlhkost (vlhkost přilehlého pórovitého prostředí) | OBEC) | 1) 2) | |
| B | Prosakující voda horninovým prostředím kolem vertikálních konstrukcí | OBEC) | 3) 4) | |
| C | Voda hromadící se na horizontálních podzemních konstrukcích a stékající kolem níže umístěných vertikálních ploch | OBEC) | 5) 6) | |
| D | Tlaková voda o tlaku < 0,02 MPa (2 m) | OBEC) | 7) 8) | |
| E | Tlaková voda o tlaku > 0,02 MPa | OBEC) | 9) 10) | |
| F | Odstřikující voda | ≥ 300 mm | 1), 2) OBEC) | 11) 12) |
Poznámky:
1) Části stěn přimykající se k terénu se proti působení srážkové odstřikující vody i vody povrchové zpravidla chrání povlakovými hydroizolacemi, přecházejícími z oblasti pod terénem na stěny objektů nad terénem; povlakové hydroizolace se nad terénem chrání před nepříznivým mechanickým a korozním namáháním odolnými materiály, zejména obklady.
POZNÁMKY
- Přesah povlakových hydroizolací nad úrovní přilehlého terénu se volí v závislosti na konstrukčním řešení detailu styku konstrukce s terénem, předpokládané úrovni povrchové vody, tloušťce sněhové pokrývky apod.
- Hydroizolační ochranu stěn a prostupujících konstrukcí, přimykajících se ke střechám, řeší ČSN 73 1901.
2) Výšku ukončení je nutno volit s ohledem na konkrétní podmínky dané stavby. Hodnota 300 mm je převzata z již zrušené normy, viz 13).
OBEC) Obecná zásada
Zdroje:
- [01] ČSN P 73 0600 Hydroizolace staveb – Základní ustanovení (11.2000)
- [02] ČSN 73 0600 Ochrana staveb proti vodě. Hydroizolace. Základní ustanovení. (4.1994); zrušena 1.12.2000
1)
[01] ČSN P 73 0600 Hydroizolace staveb – Základní ustanovení (11.2000)
2)
[02] ČSN 73 0600 Ochrana staveb proti vodě. Hydroizolace. Základní ustanovení. (4.1994); zrušena 1.12.2000
3)
[01] ČSN P 73 0600 Hydroizolace staveb – Základní ustanovení (11.2000)
4)
[02] ČSN 73 0600 Ochrana staveb proti vodě. Hydroizolace. Základní ustanovení. (4.1994); zrušena 1.12.2000
5)
[01] ČSN P 73 0600 Hydroizolace staveb – Základní ustanovení (11.2000)
6)
[02] ČSN 73 0600 Ochrana staveb proti vodě. Hydroizolace. Základní ustanovení. (4.1994); zrušena 1.12.2000
7)
[01] ČSN P 73 0600 Hydroizolace staveb – Základní ustanovení (11.2000)
8)
[02] ČSN 73 0600 Ochrana staveb proti vodě. Hydroizolace. Základní ustanovení. (4.1994); zrušena 1.12.2000
9)
[01] ČSN P 73 0600 Hydroizolace staveb – Základní ustanovení (11.2000)
10)
[02] ČSN 73 0600 Ochrana staveb proti vodě. Hydroizolace. Základní ustanovení. (4.1994); zrušena 1.12.2000
11)
[01] ČSN P 73 0600 Hydroizolace staveb – Základní ustanovení (11.2000)
12)
[02] ČSN 73 0600 Ochrana staveb proti vodě. Hydroizolace. Základní ustanovení. (4.1994); zrušena 1.12.2000
13)
[02] ČSN 73 0600 Ochrana staveb proti vodě. Hydroizolace. Základní ustanovení. (4.1994); zrušena 1.12.2000
stav/hydrofyzikalni_namahani.1644661547.txt.gz · Poslední úprava: autor: karolinas


