Toto je starší verze dokumentu!
Obsah
Kotvení
Upevnění výrobku musí být navrženo a provedeno tak, aby síly na něj působící a jeho vlastní tíha byly převedeny do stavební konstrukce. Splnění tohoto požadavku závisí na typu výrobku a výběru kotevních prvků, nosných a distančních podložek. Naopak síly ze stavební konstrukce nesmí být přenášeny na výrobek.
Umístění kotvících prvků
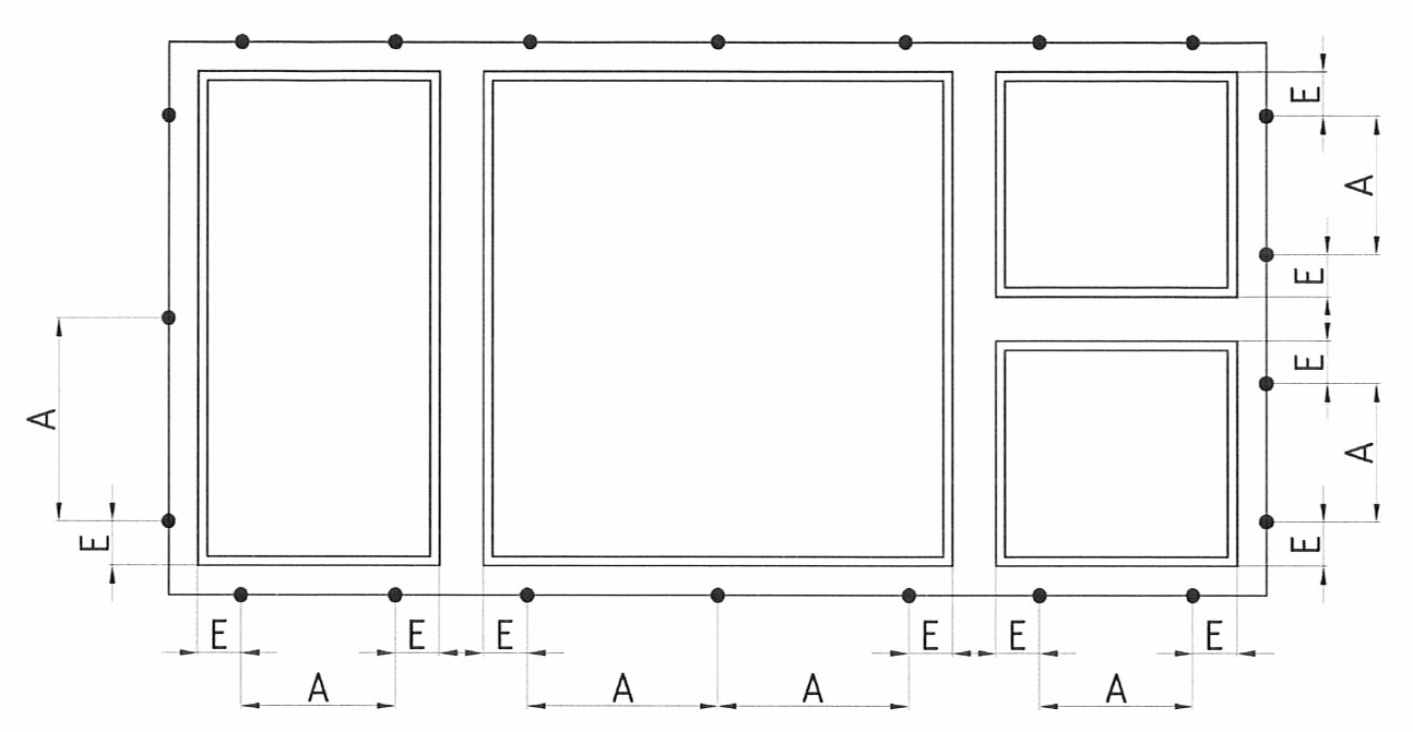
Umístění kotvicích prvků musí být navrženo a provedeno tak, aby bylo zabezpečeno přenesení sil od namáhání výrobku do konstrukce stavby a současně umožněny dilatační pohyby výrobku. Kotvení nesmí být umístěno proti spojům příčníků a sloupků výrobku. Rozmístění podložek a odstupy kotvicích prvků uvádí obrázky.
Legenda A – vzdálenost kotvicích prvků
- max. 700 mm pro plastová okna
- max. 800 mm pro kovová okna
- max. 800 mm pro dřevěná okna
E – vzdálenost od vnitřního rohu rámu a sloupku cca 150 mm, pro plastové barevné profily cca 250 mm
Poloha kotvicích prvků v závislosti na materiálu výplně:
a) vzdálenosti kotvicích prvků
- u hliníkového okna max. 800 mm;
- u dřevěného okna max. 800 mm;
- u plastového okna max. 700 mm.
b) vzdálenost od vnitřního rohu rámového rohu a od sloupků a příček by měla být 100 mm až 150 mm a pro plastová barevná okna 250 mm.
Uvedené vzdálenosti jsou obecné a v konkrétním případě je třeba se řídit pokyny dodavatele výrobku.
Základní přehled různých typů kotvení
- Rámová příchytka
- Pásová kotva
- Nosný profil anebo úhelník
- Pomocný osazovací rám
- Konzoly
Zdroj: TNI 74 6077 Okna a vnější dveře – Požadavky na zabudování (2.2011)


