Toto je starší verze dokumentu!
Obsah
Plochy ve stavebnictví
Podlahová plocha
Pro výpočet podlahové plochy místnosti platí:
- plochu měříme v metrech čtverečních [m2], kterou zaokrouhlíme na dvě desetinná místa,
- podlahová plocha je plocha půdorysného řezu místností a prostorů stavebně upravených k účelovému využití ve stavbě, vedeného v úrovni horního líce podlahy podlaží, ve kterém se nacházejí,
- jednotlivé plochy jsou vymezeny vnitřním lícem svislých konstrukcí stěn včetně jejich povrchových úprav (např. omítky),
- do podlahové plochy místností se:
| nezapočítávají | nosné sloupy uprostřed místností, |
| plocha dveřních a okenních ústupků, | |
| započítávají | plochy využité k zastavění zařizovacími předměty (např. nábytek, vestavěný nábytek, umyvadlo, vana včetně schodišťového stupně, kuchyňská linka, lednice, plynový a elektrický sporák, kamna nebo jiná otopná tělesa), |
| příčky, které nerozdělují místnosti a nejsou postaveny až ke stropu (např. dělicí příčky v koupelnách opticky oddělující záchodovou mísu od ostatního prostoru, mobilní příčky atd.). |
- u místností se šikmými stropy se do plochy obytné místnosti nezapočítává plocha se světlou výškou menší než 1,2 m,
- při dvou patrech, která jsou spojeny schodištěm (betonové, ocelové i dřevěné) se započítává plocha dolního průmětu schodiště. Plocha otvoru v podlaze horní místnosti se nezapočítává.
Podlahová plocha v požární bezpečnosti staveb
U oboru požární bezpečnosti staveb se podlahové plocha místností označuje písmenem S, jednotkou jsou m2. Jednotlivé plochy jsou vymezeny vnitřním lícem svislých konstrukcí stěn včetně jejich povrchových úprav (např. omítky). Celková podlahová plocha požárního úseku v m2 se stanoví součtem půdorysných ploch jednotlivých užitných podlaží požárního úseku.
Podlahová plocha v tepelně – technických výpočtech
Rozměry pro výpočet tepelného výkonu/ztrát
- Výběr rozměrů musí být jednoznačně určen a mohou být použity vnitřní, venkovní nebo celkové vnitřní rozměry.
- Obecně se doporučuje používat rozměry vnější, neboť se tak automaticky dostáváme na stranu bezpečnější a částečně tak zohledňujeme vliv tepelných vazeb, na rozdíl od použití rozměrů vnitřních.
Zdroj: ČSN EN 12831 Tepelné soustavy v budovách – Výpočet tepelného výkonu (3.2005); Oprava: Opr.1 (8.2005)
Celková energeticky vztažná plocha
Vnější půdorysná plocha všech prostorů s upravovaným vnitřním prostředím v celé budově, vymezená vnějšími povrchy konstrukcí obálky budovy.
Zdroj: Zákon 406/2000 Sb. o hospodaření energií; Změna: 359/2003 Sb., 694/2004 Sb., 180/2005 Sb., 177/2006 Sb., 214/2006 Sb., 574/2006 Sb., 177/2006 Sb. (část), 186/2006 Sb., 393/2007 Sb., 124/2008 Sb., 177/2006 Sb. (část), 223/2009 Sb., 299/2011 Sb., 53/2012 Sb., 165/2012 Sb., 318/2012 Sb.
Celková podlahová plocha
Podlahová plocha všech podlaží budovy vymezená mezi vnějšími stěnami, bez neobyvatelných sklepů a oddělených nevytápěných prostor.
Upozornění: Tento pojem byl zrušen zákonem 318/2012 Sb., kterým se mění zákon č. 406/2000 Sb., o hospodaření energií, ve znění pozdějších předpisů.
Bližší informace o způsobu započítávání podlahových ploch pro tepelně – technické výpočty naleznete v předpisech:
- TNI 73 0329 Zjednodušené výpočtové hodnocení a klasifikace obytných budov s velmi nízkou potřebou tepla na vytápění
Rodinné domy.
- TNI 73 0330 Zjednodušené výpočtové hodnocení a klasifikace obytných budov s velmi nízkou potřebou tepla na vytápění
Bytové domy.
Odvodňovaná plocha, účinná plocha střechy
Odvodňovaná plocha je půdorysný průmět střešní roviny.
Účinná plocha střechy je půdorysný průmět odvodňované plochy uváděný v m2, který se vypočte podle 4.3.2 ČSN EN 12056 – 3. Používá se pro výpočet odtoku dešťových vod dle norem ČSN 75 6760 a ČSN EN 12056 – 3. Pozor u účinné plochy střechy lze zohlednit vliv účinku větru, pokud národní a místní předpisy nestanovují jinak.
Účinná nepropustná plocha střechy se stanovuje na základě výpočtu podle tabulky 3, normy ČSN EN 12056 – 3 a při jejím výpočtu se zohledňuje účinek větru.
Zdroje:
- ČSN 75 6760 Vnitřní kanalizace (5.2003);
- ČSN EN 12056 – 3 Vnitřní kanalizace – Gravitační systémy – Část 3: Odvádění dešťových vod ze střech – Navrhování a výpočet (6.2001); Změna: Z1 (5.2003)„
Užitková plocha
Užitkovou plochou bytu se rozumí součet ploch všech jeho místností včetně místností vedlejších užívaných výhradně nájemcem bytu, bez ploch domovního vybavení včetně sklepů, upravený podle zvláštního předpisu.
Zdroj: VYHLÁŠKA 85/1997 Sb. Ministerstva financí ze dne 8. dubna 1997, o nájemném z bytů pořízených v družstevní bytové výstavbě a úhradě za plnění poskytovaná s užíváním těchto bytů
Zastavěná plocha
Stavební zákon
Zastavěná plocha pozemku je součtem všech zastavěných ploch jednotlivých staveb. Zastavěnou plochou stavby se rozumí plocha ohraničená pravoúhlými průměty vnějšího líce obvodových konstrukcí všech nadzemních i podzemních podlaží do vodorovné roviny. Plochy lodžií a arkýřů se započítávají. U objektů poloodkrytých (bez některých obvodových stěn) je zastavěná plocha vymezena obalovými čarami vedenými vnějšími líci svislých konstrukcí do vodorovné roviny. U zastřešených staveb nebo jejich částí bez obvodových svislých konstrukcí je zastavěná plocha vymezena pravoúhlým průmětem střešní konstrukce do vodorovné roviny.
Zdroje:
- ZÁKON 183/2006 Sb. ze dne 14. března 2006 o územním plánování a stavebním řádu (stavební zákon); Změna: 68/2007 Sb.; Změna: 191/2008 Sb.; Změna: 223/2009 Sb.; Změna: 345/2009 Sb.; Změna: 379/2009 Sb.; Změna: 227/2009 Sb.; Změna: 424/2010 Sb.; Změna: 281/2009 Sb.; Změna: 420/2011 Sb.; Změna: 142/2012 Sb., 167/2012 Sb.; Změna: 350/2012 Sb.;
- Obrázky: HLAVSA, Petr, Kateřina KOMÍNKOVÁ, Josef REMEŠ a Lucie RAŠOVSKÁ.
- Zastavěná plocha stavby dle stavebního zákona a komplikovanost jejího stanovení.
- TZB-info [online]. 20.5.2013, - [cit. 2013-07-23]. DOI: ISSN 1801-4399. Dostupné z: http://stavba.tzb-info.cz/normy-a-pravni-predpisy-hruba-stavba/9928-zastavena-plocha-stavby-dle-stavebniho-zakona-a-komplikovanost-jejiho-stanoveni
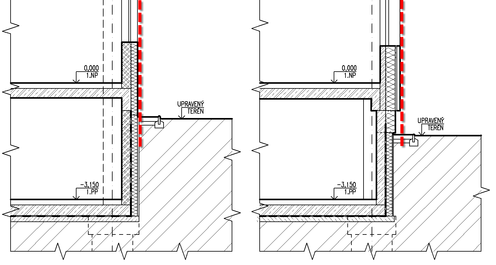
ČSN 73 4055 Výpočet obestavěného prostoru pozemních stavebních objektů
Zastavěná plocha je plocha půdorysného řezu vnějším obvodem svislých konstrukcí uvažovaného celku (budovy, podlaží nebo jejích částí); v I. podlaží se měří nad podnoží nebo podezdívkou, přičemž se izolační přizdívky nezapočítávají. U objektů nezakrytých nebo poloodkrytých je zastavěná plocha vymezena obalovými čarami vedenými vnějšími líci svislých konstrukcí v rovině upraveného terénu.
Zdroj: ČSN 73 4055 Výpočet obestavěného prostoru pozemních stavebních objektů (1.1963)
Poznámka autorů k ČSN 73 4055: Zastavěná plocha se uvažuje jako půdorysný průmět vnějšího obvodu budovy s terénem. U atypických budov, kdy máme nadzemní podlaží předsazeno, odpovídá vnější obvod svislému průmětu na terén. Z toho plyne, že by se za hranu zastavěné plochy budovy měla považovat vnější hrana obvodového pláště budovy, který tvoří svislé konstrukce a to včetně systému zateplení. U předsazeného podlaží v horních patrech, bereme jako hranici svislý průmět vnější hrany obvodového pláště těchto pater. Přesah šikmých střech se za hranici zastavěné plochy nepovažuje.








